Plan masse

Le projet de rénovation de la maison nécessitait d’identifier clairement les problèmes du bâtiment et de définir avec précision les interventions à effectuer, en raison des ressources financières limitées du maître d’ouvrage. Outre l’isolation thermique, le remplacement des fenêtres et du système de chauffage, il était également indispensable de revoir l’agencement intérieur, qui ne répondait pas aux besoins de la famille.

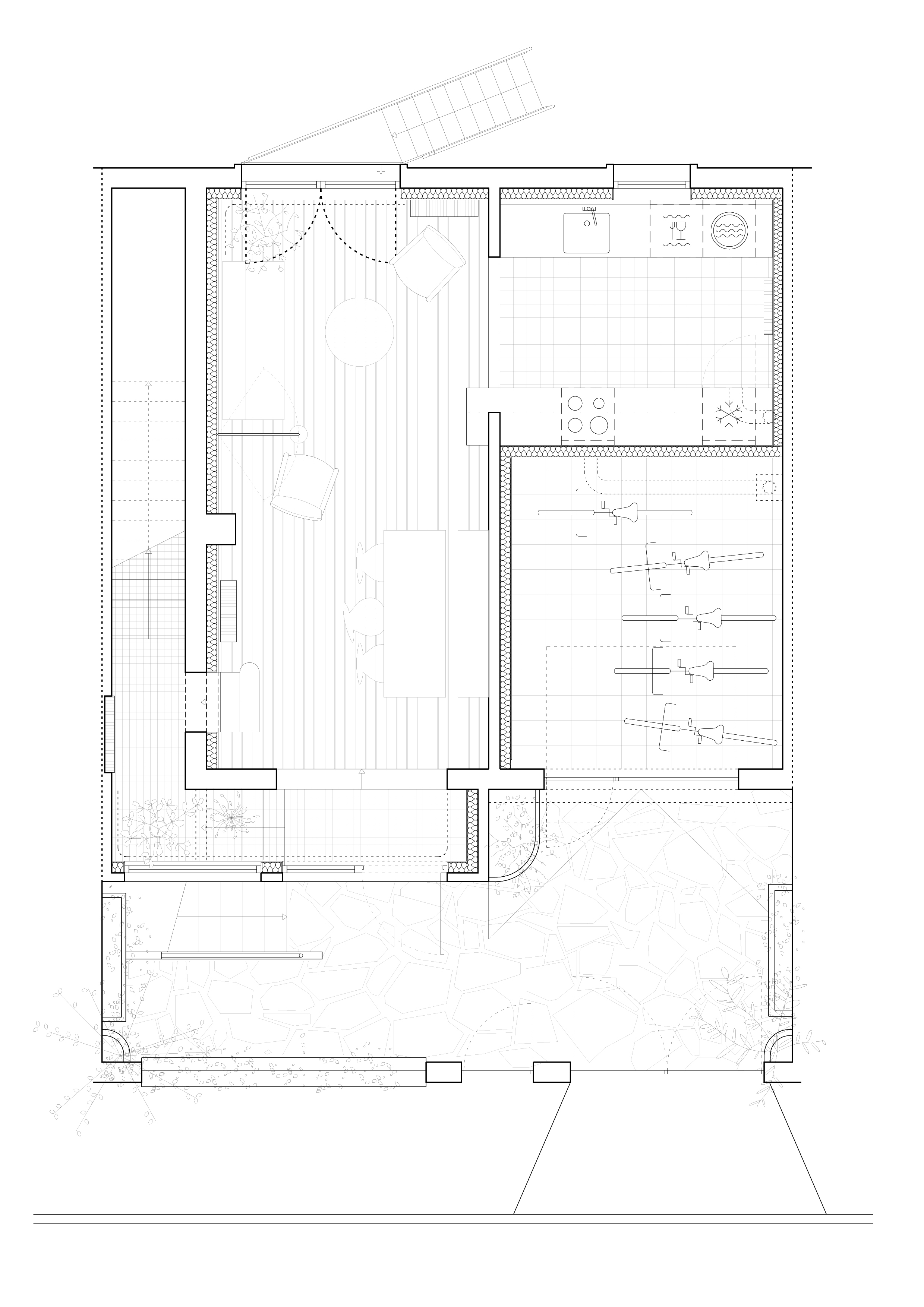
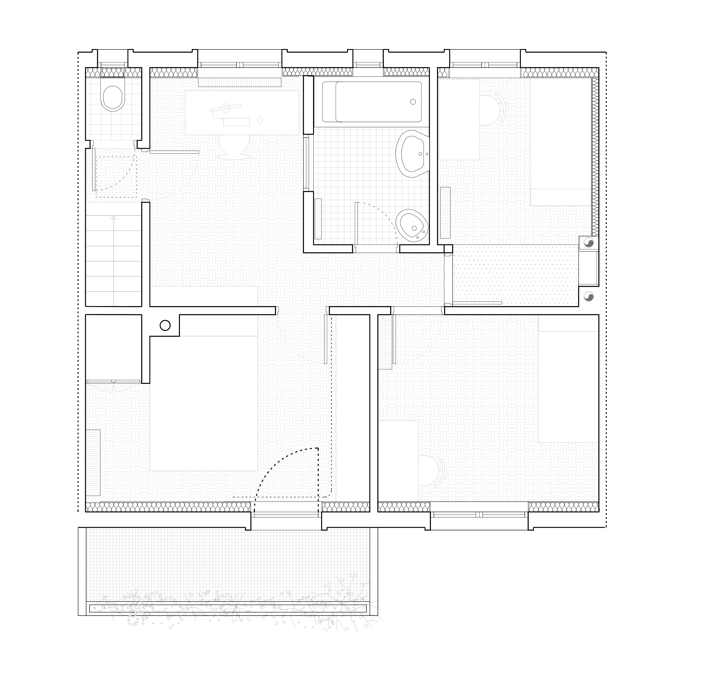
Au rez-de-chaussée, il a fallu démolir un mur porteur donnant sur le garage afin d’y aménager la cuisine et d’agrandir une ouverture sur le séjour. Au premier étage, la salle de bain a été agrandie et les cloisons des chambres ont été réorganisées. Le petit jardin situé à l’arrière de la maison a été relié au salon grâce à un nouvel escalier en acier.

Tous les éléments d’origine présentant un intérêt ont été préservés et complétés par de nouveaux ajouts. Une grande partie des matériaux utilisés pendant la rénovation provient du réemploi : pierre, marbre, carrelage en céramique, sanitaires.

Auteurs — Altan Radar + Laure Veyre de Soras
Photographies — Édouard Fargues
Lieu — Bagnolet, Seine-Saint-Denis
Années — 2023-2024 (projet livré)
Maître d’ouvrage — Client privé
Surface — 80 m²
Budget — 80 000€