Plan masse

La disposition du projet en séquences jardins/maisons/cours est typique du tissu pavillonnaire autour de la rue Anatole France. Elle présente l'avantage d'une inscription douce dans le contexte, tout en permettant une relation contrôlée avec la rue. Les ouvertures sont majoritairement orientées sur l’intérieur de la parcelle, limitant les effets de vis à vis. Les plantations des cours et jardins contribuent à renforcer l’ambiance pittoresque des rues adjacentes. Ces espaces libres maintiennent des dégagements cruciaux pour les voisins dont la façade est orientée sur la rue.

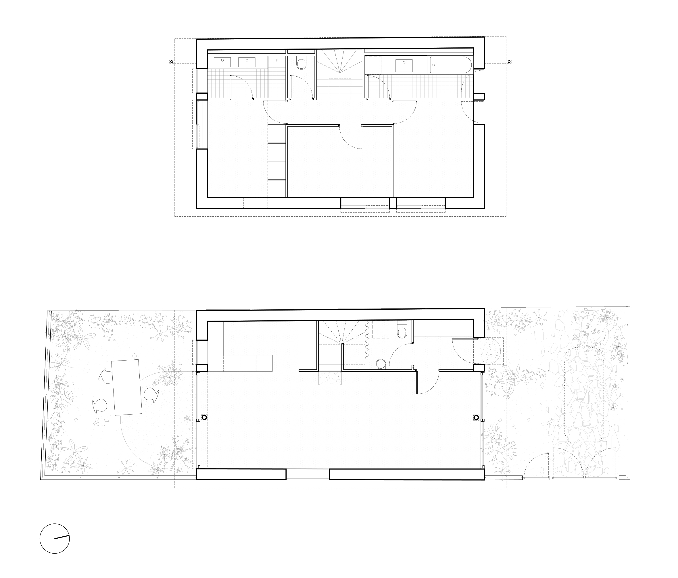
La maison est construite en béton de chanvre et possède des planchers traditionnels en bois avec des solives apparentes.

Auteurs — Altan Radar, Laure Veyre de Soras
Lieu — Bagnolet, Seine-Saint-Denis
Années — 2024
Maître d’ouvrage — Client privé
Surface — 100 m²
Budget — 300 000€