Plan masse

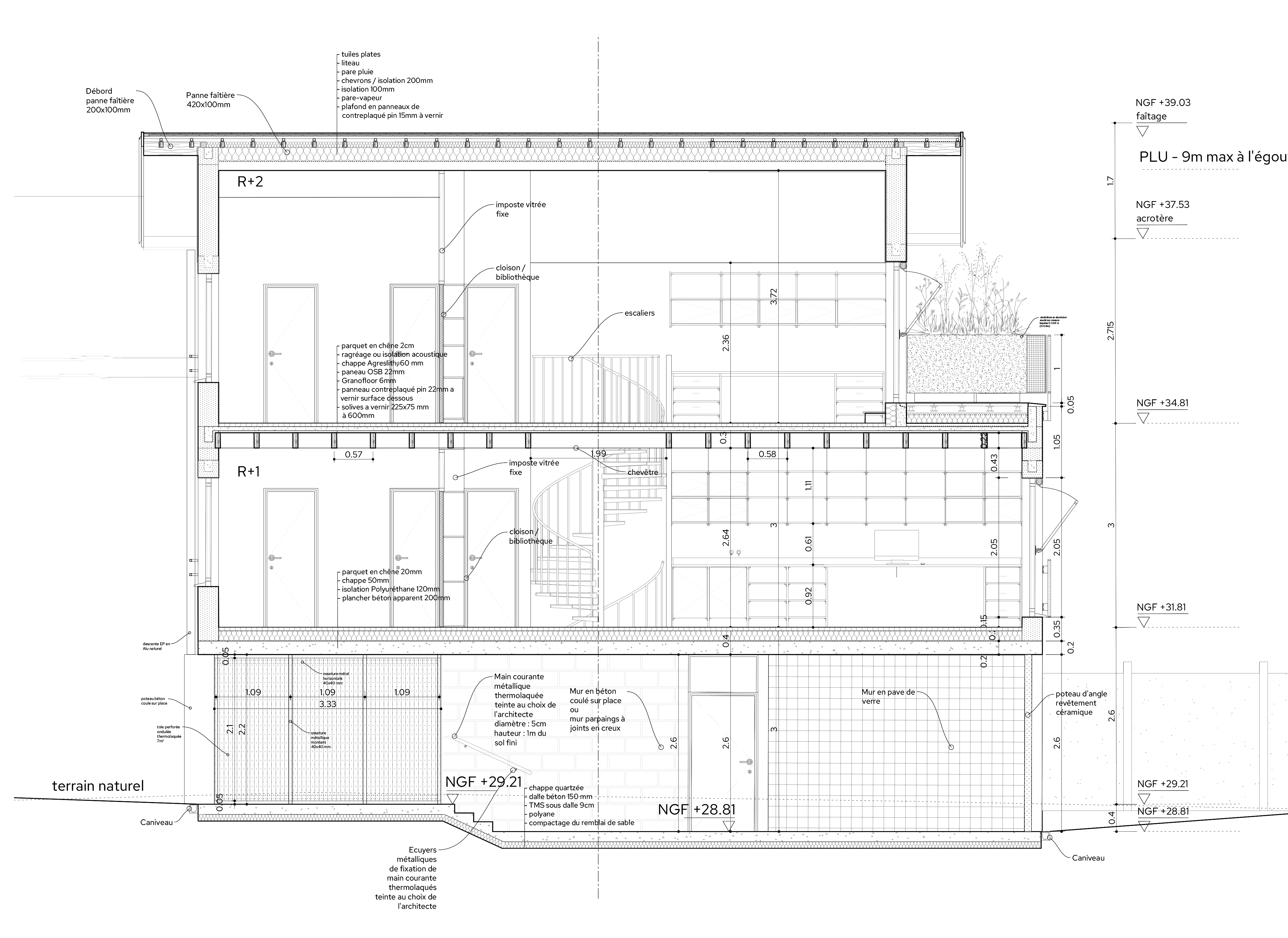
La nouvelle construction en R+2 s’intègre naturellement dans le tissu pavillonnaire, en mitoyenneté avec les maisons voisines. Son implantation respecte l’échelle du quartier, soulignée par les pignons et la toiture en tuiles brunes à double pente.

Le projet se compose de deux strates. Au rez-de-chaussée, des espaces ouverts et fermés accueillent stationnement, circulation, local à vélos, atelier et escalier, apportant légèreté et vues dégagées sur le jardin arrière. Aux étages, des espaces plus intimisés reprennent la morphologie typique du quartier, avec une toiture inclinée et un débord de 80 cm protégeant la façade.

L’architecture repose sur des matériaux simples et durables. Le béton brut au rez-de-chaussée ancre le bâtiment, tandis que les étages sont remplis de blocs de béton de chanvre, un matériau bas-carbone localement produit, recouvert d’un enduit à la chaux pour préserver ses qualités thermiques. Cette approche low-tech garantit la pérennité et l’entretien du bâtiment dans le temps.

Auteurs — Altan Radar, Belval & Parquet
Architectes (Esquisse)
Lieu — Nanterre, Hauts-de-Seine
Années — 2024-2025 (chantier en cours)
Maître d’ouvrage — Client privé
Surface — 95 m²
Budget — 350 000€